Ezüsthegy

Ára: 210000000 Ft
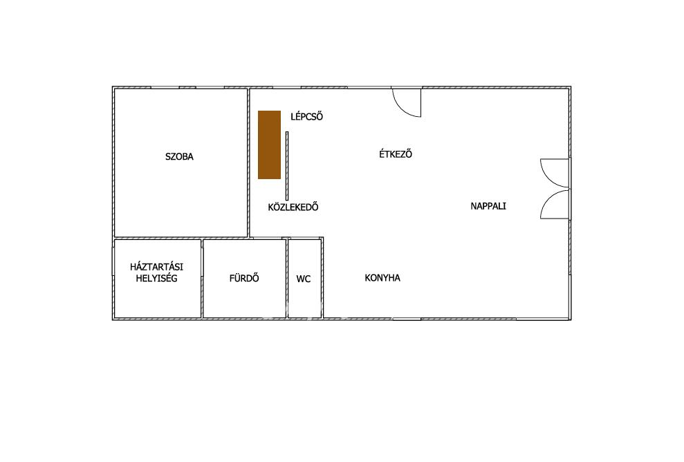
Pilisborosjenőn, Üröm szomszédságában, csodálatos természeti környezetben kínáljuk eladásra ezt az új építésű, modern családi ikerházat. A nemrég induló projekt keretein belül 6 ház épül, melyek közül ez a ház egy saját kerttel, erkéllyel, 2 autónak épületen belüli garázzsal rendelkező háromszintes otthon, amely 196 nm nettó lakóterületet kínál. Az egyes házak egy közös útról közelíthetőek meg. Az alagsorban kapott helyet 2 autó parkolására alkalmas garázs, előtér, műhely és tároló, gépészeti helyiség. A földszinten tágas és világos közösségi tér várja a leendő tulajdonosokat: előszoba, konyha, étkező, nappali, egy tágas szoba, külön WC, és egy zuhanyzóval ellátott fürdő háztartási helyiséggel. Az emeleti szinten három hálószoba, erkély, és egy családi fürdőszoba található, így tökéletes elrendezést biztosít akár nagyobb család számára is. Az épület magas műszaki tartalommal és prémium anyagokkal készül, energiahatékony megoldásokkal: Porotherm 30 N+F Rapid Dryfix falazat, háromrétegű üvegezésű, hőhídmentes nyílászárók, elektromos redőnyök távirányítóval, padlófűtés hőszivattyúval (H tarifával), két klímaberendezés, valamint napelem- és riasztóelőkészítés gondoskodik a modern, gazdaságos működésről. A belső burkolatok, szaniterek és belső ajtók ízlés szerint választhatók, így mindenki a saját stílusára szabhatja otthonát. A lakáshoz saját kert, két állásos garázs és rendezett környezet tartozik, ahol a kerítés, támfalak és a tereprendezés is a kivitelezés része. Az ingatlan A energetikai besorolású, így hosszú távon is kedvező fenntartási költségeket kínál. Pilisborosjenő Budapesttől északnyugatra, néhány percre található. Autóval Budapesttől a 3. kerületen át a 10-es úton, vagy Csillaghegy felől is megközelíthető. Tömegközlekedés terén autóbusz az Árpád híd irányába és Ürömön vonatmegálló is elérhető, mely a Nyugati Pályaudvar és Esztergom között közlekedik. A környék a főváros közelsége mellett igazi békés élettér, a település pedig óvodával, iskolával, rendelőkkel és számtalan kirándulási lehetőséggel rendelkezik. A természet közelsége, a Pilis hegyei, a Teve-szikla és a levendulamezők mind hozzájárulnak ahhoz, hogy ez a ház nemcsak otthon, hanem valódi életérzés legyen. További információkért és a projekt bemutatásával, a ház megtekintésével kapcsolatban várom az érdeklődők jelentkezését!

Ha további kérdésed lenne, keress bizalommal!

Havas János

Vezető Értékesítési Tanácsadó, Tulajdonos

Telefonszám

+36 30 870 0880

Kapcsolat